周口市通用鼓風機有限公司

產品詳情
4-68 NO.12C除塵離心風機
分享到:

4-68 NO.12C除塵離心風機

生產廠家 周口風機
品牌 周鼓
產品詳情

風機信息

4-68型除塵離心風機 - 風機用途

4-68型離心通風機可用于一般工廠及大型建筑物的室內通風換氣。即可用來輸入氣體,也可用來輸出氣體。所輸送的氣體應不為超過80度的空氣和其他不自燃的、對人體無害的,對鋼鐵材料無腐蝕性的氣體,氣體內不允許含有黏性物質,所含的塵土及硬質顆粒物不大于150毫克每立方米。

4-68型除塵離心風機 - 風機型式

本風機通常制成單吸入式,機號有:NO2.8、3.15、3.55、4、4.5、5、6.3、8、10、12.5、20等十二個機號。
風機可制成右旋或左旋兩種型式,從電機一端正視,葉輪按順時針方向旋轉稱右旋風機,逆時針則為左旋風機。
風機的出口位置,以機殼的出風口校對表示,左、右均可制成0°、45°、90°、135°、180°、225°共六種角度。
風機的傳動方式有A,B,C,D型四種。NO2.8-5采用A式傳動,以電機直聯傳動,風機的葉輪、機殼直接固定在電機軸和法蘭盤上(電機用D2/T2型);NO6.3-12.5采用懸臂支承裝置,又分C式(皮帶傳動,皮帶輪在軸承外側)和D式(用聯軸器聯接傳動)兩種傳動方式,NO16,20采用B式懸臂支承裝置,皮帶傳動,皮帶輪在軸承中間。

4-68型除塵離心風機- 結構特點

4-68型風機的NO2.8-5主要由葉輪,機殼,進風口等部分配電機直聯組成;
NO6.3-20除上述部分外還有傳動組部分:
葉輪---由12片傾翼形葉片焊接于曲線型輪蓋于平板型的輪盤中間,均用鋼板制造,并經過靜,動平衡校正,空 氣性能良好,效率高,運轉平穩。
機殼---用普通鋼板焊接而成的蝸形體。機殼做成兩種不同形式,NO.2.8-5機殼做成整體,不能拆開,NO16B,20B的機殼制成三開式,除沿中分水平面分為兩半外,上半部再沿垂直中心線分為為兩半,用螺栓連接,以便維修時可垂直吊出轉子。
進風口-- 做成收斂式流線型整體結構,用螺栓固定于風機入口一側。
傳動組-- 由主軸,軸承箱,滾動軸承,皮帶輪或聯軸器組成。主軸由優質鋼加工制作。No6.3-12.5四個機號,軸 承箱整體結構,且裝有溫度計和油標,NO16B、20B兩個機號風機用二只并列軸承座,在軸承座上裝有溫度計,采用軸承滑脂潤滑。

4-68型除塵離心風機 - 性能參數

機號

傳動方式

轉速r/min

序號

全壓Pa

流量m3/h

內效率%

內功率KW

所需功率KW

電動機

型號

功率

2.8

A

2900

1

2

3

4

5

6

7

970

970

961

921

853

764

657

1131

1319

1508

1696

1885

2073

2262

78.5

83.2

86.5

87.9

86.1

80.1

73.5

0.39

0.43

0.47

0.49

0.52

0.55

0.56

0.59

0.65

0.71

0.74

0.73

0.77

0.78

Y802-2

1.1

2.8

A

1450

1

2

3

4

5

6

7

245

245

235

225

215

186

166

565

660

754

848

942

1037

1131

78.5

83.2

86.5

87.9

86.1

80.1

73.5

0.049

0.054

0.057

0.060

0.066

0.067

0.071

0.07

0.08

0.09

0.09

0.10

0.10

0.11

Y801-4

0.55

3.15

A

2900

1

2

3

4

5

6

7

1245

1245

1225

1176

1098

980

853

1825

2093

2362

2630

2899

3167

3435

79.9

84.3

87.3

88.6

87.0

81.3

75.2

0.79

0.86

0.92

0.97

1.02

1.06

1.08

1.11

1.20

1.29

1.36

1.33

1.38

1.40

Y90S-2

1.5

3.15

A

1450

1

2

3

4

5

6

7

313

313

304

294

274

245

215

912

1047

1181

1315

1449

1583

1718

79.9

84.3

87.3

88.6

87.0

81.3

75.2

0.10

0.11

0.11

0.12

0.13

0.13

0.14

0.14

0.14

0.14

0.16

0.17

0.17

0.18

Y801-4

0.55

3.55

A

2900

1

2

3

4

5

6

7

1608

1608

1569

1510

1402

1265

1108

2708

3092

3477

3861

4245

4629

5013

81.1

85.3

88.1

89.4

87.8

82.5

76.7

1.49

1.62

1.72

1.81

1.88

1.97

2.01

1.94

2.11

2.24

2.35

2.44

2.56

2.41

Y100L-2

3

3.55

A

1450

1

2

3

4

5

6

7

402

402

392

372

353

313

274

1354

1546

1738

1930

2122

2315

2507

81.1

85.3

88.1

89.4

87.8

82.5

76.7

0.19

0.20

0.21

0.22

0.24

0.24

0.25

0.29

0.30

0.32

0.33

0.36

0.36

0.38

Y801-4

0.55

4-68型除塵離心風機 - 圖片

4-68-12.jpg

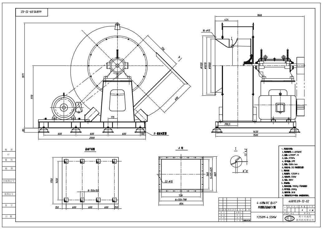
4-68型除塵離心風機 - 外形尺寸圖

20230224




Fans Design
專注于工業風機研發與生產

Doors & Frames Design

聯系QQ:505962081 手機號碼:13148232957(同微信) 聯系郵箱:505962081@qq.com 聯系地址:河南省周口市川匯區漢陽路37號

主站蜘蛛池模板: 浦东新区| 南部县| 石家庄市| 阳泉市| 道孚县| 西华县| 叶城县| 乌兰察布市| 仲巴县| 环江| 建湖县| 内丘县| 宜兰县| 廊坊市| 西乡县| 天门市| 屏边| 郸城县| 绵竹市| 上虞市| 筠连县| 花莲县| 兴隆县| 商河县| 上蔡县| 巴东县| 全南县| 义乌市| 成武县| 闽侯县| 江永县| 天门市| 明星| 黄平县| 全南县| 浏阳市| 个旧市| 广昌县| 永平县| 新疆| 武威市|